Magnifique propriété de 1789 sans vis-à-vis nichée sur un terrain de 2,9 hectares en partie boisée offrant une vue imprenable sur la vallée et les majestueuses Pyrénées.
Avec une surface totale de 355 m² ce corps de ferme entièrement rénové (DPE B et A) est idéalement situé entre le Pays Basque et le Béarn, à 2 minutes de la première boulangerie/épicerie et des plages du gave d’Oloron, à 10 minutes de toutes commodités et écoles, 15 minutes de la gare SNCF et de l’autoroute A64, 50 minutes des aéroports de Pau et Bayonne/Biarritz et à une heure des montagnes et de l’océan.
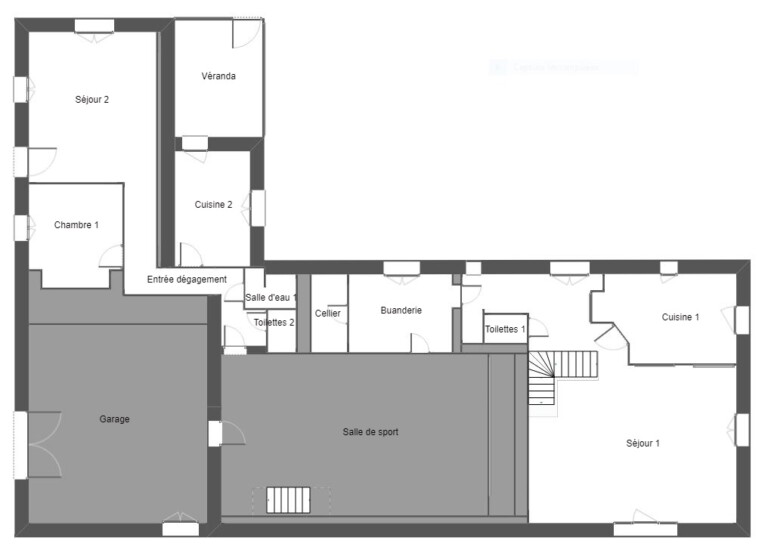
Le rez-de-chaussée se compose d’un salon/salle à manger chaleureux, agrémenté de matériaux naturels tels que le bois de Paulownia aux murs et du travertin au sol, d’une grande cuisine ouverte sur l’extérieur grâce à de grandes verrières avec un plan de travail en Dekton. Vous trouverez également une buanderie, un cellier, des toilettes ainsi qu’une grande salle de sport, idéale pour des réceptions ou des projections cinématographiques, et un atelier/garage.
Toujours au rez-de-chaussée se trouve un appartement F2 indépendant de 55 m², entièrement équipé, avec cours et accès privatifs. Cet appartement est actuellement en location saisonnière, générant 6 000 € de revenus annuels.
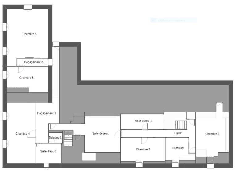
À l’étage se trouve 5 chambres spacieuses et lumineuses, un dressing, une salle de jeux/bibliothèque, ainsi que 2 salles d’eau et 2 WC.
Désolé, aucun enregistrement n'a été trouvé. Veuillez ajuster vos critères de recherche et réessayer.
Désolé, impossible de charger l'API Maps.



















